Monthly Archives: Jan 2014

Hereford – The Construction of Barrs Court Station 5

David continues:

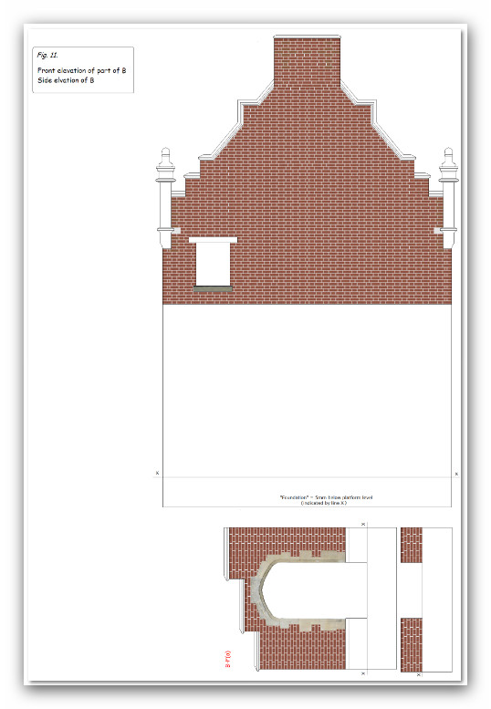
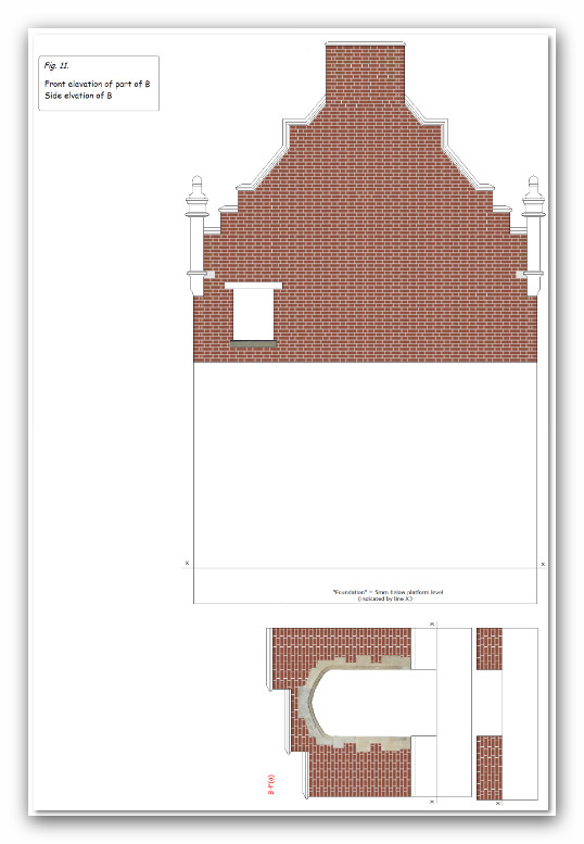
Once the fixative has dried the various door and window spaces can be carefully removed and the elevations cut out. This process and the various stages in construction are shown in figs. 26-39, below.

Doors and windows were printed onto glossy photo-paper, cut out and glued behind the appropriate apertures. It was not possible to produce transparent windows, so the glass was coloured navy-black, and in some cases, notably the platform and front elevations of the buffet where illuminated from within, these were copied straight from the photographs.

IM000009.JPG IM000015.JPG IM000016.JPG IM000019.JPG IM000013.JPG IM000012.JPG IM000014.JPG IM000020.JPG IM000024.JPG IM000034.JPG IM000032.JPG IM000033.JPG IM000036.JPG IM000044.JPG

Hereford – The Construction of Barrs Court Station 4

David goes on to describe the method of construction:

Method of Construction

The first step was to make a line drawing of the front elevation of section C just to make sure that my estimated dimensions were on the right lines and that printing would be of the necessary accuracy (see fig. 6).Ashampoo_Snap_2014.01.26_14h58m37s_003

Next followed the detailed drawing of all the elevations -front, side and platform. Wherever possible, actual door and window surrounds were copied from the photographs and resized in situ (see figs. 7- 23, below).

The process of determining dimensions was carried out from the photographs, and some examples of this are shown in fig. 24, below.

These images were then printed onto A4 sheets of white card. The ink used in inkjet printers appears to be soluble in water and whitspirit so each sheet was sprayed with artist’s fixative. This seems to give some protection but care has to be taken to protect the parts from contact with these. I’m also not too sure about the colour permanence of the ink so it may be a good idea to shield models made this way from direct sunlight.

Ashampoo_Snap_2014.01.26_18h49m40s_004

Ashampoo_Snap_2014.01.26_18h50m47s_005

Ashampoo_Snap_2014.01.26_18h51m24s_006

Ashampoo_Snap_2014.01.26_18h52m21s_007

Ashampoo_Snap_2014.01.26_18h52m53s_008

Ashampoo_Snap_2014.01.26_18h52m53s_009

Ashampoo_Snap_2014.01.26_18h59m42s_010

Ashampoo_Snap_2014.01.26_18h59m42s_011Ashampoo_Snap_2014.01.26_19h03m35s_012Ashampoo_Snap_2014.01.26_19h05m48s_013

Ashampoo_Snap_2014.01.26_19h06m15s_014 Ashampoo_Snap_2014.01.26_19h06m45s_015 Ashampoo_Snap_2014.01.26_19h07m12s_016 Ashampoo_Snap_2014.01.26_19h07m38s_017 Ashampoo_Snap_2014.01.26_19h08m22s_018 Ashampoo_Snap_2014.01.26_19h08m46s_019 Ashampoo_Snap_2014.01.26_19h09m22s_020 Ashampoo_Snap_2014.01.26_19h09m50s_021 Ashampoo_Snap_2014.01.26_19h10m39s_022

Hereford – The Construction of Barrs Court Station 3

David continues:

Roger’s layout is based in the 1950s – 1960s. One photograph has been traced for that period (see fig 3), and another from the 1970s (see fig 4) These show a number of differences from the 2004 view (see fig 5).

Barrs Court Station - Figure 3

The lack of any detailed images from the period required meant that some intelligent guesswork would be needed with particular regard to doors and windows. The main change from the present day would have to be the re-instatement of the canopy over the main frontage (section B).

page 8

The canopy over section F would need to be omitted, as would the industrial-type steel doors in this section and the corresponding section of the platform side. These were replaced by windows as it was presumed that the later canopy and doors were provided for parcels and mail access.

page 9

 

The two doors in section B are different to other doors, but they could be 1950s so have been left. The doors in section A and the side of section I look to be more recent and have been omitted.

Figure 5

Ashampoo_Snap_2014.01.25_11h25m13s_002

Hereford – The Construction of Barrs Court Station 2

David continues:

The first job was to create as accurate a plan of the building as possible. In doing this it soon became obvious that more photographs would be required, and it was necessary to obtain accurate dimensions for the bricks used, and if possible an accurate sizing of one of the bays for comparative purposes.

Fortunately through the auspices of the N gauge Society Roger was able to contact a colleague who carried out a survey and took more photographs.
From these an approximate plan was drawn, from which it emerged that the building was about 330 feet in length which translates as 660mm in N gauge. There were 9 distinct blocks or sections of the building and these were labelled A-I to assist in identification as the various parts of the model were drawn and cut out. A final and accurate plan would not be possible until all the detailed elevations were created (see fig.2).

Ashampoo_Snap_2014.01.25_11h25m13s_002

 

Figure 2

Hereford – The Construction of Barrs Court Station 1

My father-in-law, David Cambridge became interested in the model of Hereford that I am building in N Gauge and undertook to build a card model of Barrs Court Station for the layout. I think the model is amazing. 

David did this work a few years ago. Sadly, since then, David has died.

The remainder of this post and those that follow under this heading are David’s own description of the work he did to build the model.

Barrs Court Station

This large two-storey railway station of red brick was built in 1853 for the Shrewsbury & Hereford Railway. The architect was R. E. Johnston and the building with its groups of lancet windows set in rusticated stone panels, its tall chimneys and gables, steep roofs and octagonal stone finials is listed Grade II.

Roger’s N gauge scale model of Hereford railway station and its environs required a model of Barrs Court station. He had taken a large number of photographs of the station, but been unable to trace any drawings or plan of the building except for its footprint on an OS map (see fig. 1).
I had some experience of creating models, albeit in 7mm scale, by calculating dimensions from photographs and creating designs along the lines used by Metcalfe card model buildings. This was relatively straightforward using the MSPaint accessory in Microsoft Windows.

While I wanted the model to be as detailed as I could make it I soon realised that in this small scale certain compromises would be necessary. As regards the brick-work it would not be feasible to create separate bricks in relief, so I decided to draw the elevations in as large a pixel scale in MSPaint as was practicable and to draw in individual bricks.

I settled on a scale of 600 pixels per inch and a table was drawn up listing the number of pixels required for inches and feet in 2mm scale. This ensured dimensional accuracy when printing the designs for the various parts of the model.  The table is reproduced below.

Ashampoo_Snap_2014.01.25_10h27m06s_001

 

Fig. 1

Paint template for HEREFORD station @ 300 x 300 dpi

Prototype dim.      Dim @ 2mm scale                       Pixel equivalent

                                                                    400dpi             300dpi            600dpi

½ inch                         0.08 mm                      1                      1                      2

1 inch                          0.17 mm                      3                      2                      4

2 inches                       0.33 mm                      5                      4                      8

3 inches                       0.5   mm                      8                      6                      12

4 inches                       0.67 mm                      10                    8                      16

5 inches                       0.83 mm                      13                    10                    20

6 inches                       1.0   mm                      15                    12                    24

7 inches                       1.17 mm                      18                    13                    26

8 inches                       1.33 mm                      20                    15                    30

9 inches                       1.5   mm                      23                    17                    34

10 inches                     1.67 mm                      26                    19                    38

11 inches                     1.83 mm                      28                    21                    42

1 foot                          2.0   mm                      31                    23                     46

2 feet                           4.0   mm                      62                    47                    94

3 feet                           6.0   mm                      93                    70                    140

4 feet                           8.0   mm                      124                  94                    188

5 feet                           10.0 mm                      155                  118                  236

6 feet                           12.0 mm                      186                  141                  282

7 feet                           14.0 mm                      217                  165                  330

8 feet                           16.0 mm                      248                  188                  376

9 feet                           18.0 mm                      279                  212                  424

10 feet                         20.0 mm                      310                  236                  472

11 feet                         22.0 mm                      341                  259                  519

12 feet                         24.0 mm                      372                  283                  566

 

John 1:29-42 – 19th January 2014

Over the last few weeks, the lectionary readings have contained a series of revelations about Jesus.

Over Christmas, we heard John’s revelation of Jesus as “the Word, who from the very beginning was with God and was God but also the Word made flesh living among us.” At Epiphany, we heard of the three wise men and their gifts, showing Jesus to be a king, worthy of worship and one destined to die. Last week, at Christ’s Baptism we heard God’s revelation: “This is my Son, my beloved, with whom I am well pleased.”

These revelations actually took place over a period of thirty years. But for us, heard in the space of four weeks, they are rather more intense.  Each week, learn more of Jesus’ being and purpose. Today’s passage is no different. Today John announces to the crowd gathered around him at the Jordan “Here is the Lamb of God who takes away the sin of the world.”  A few sentences later he says that Jesus is “the one who baptises with the Holy Spirit.”   And he goes on to remind everyone that Jesus is God’s son.   Then Andrew tells his brother that the “Messiah,” the Anointed has been found.

These revelations and Jesus’ appearances seem to come thick and fast, quicker and quicker. Chapters 1 and 2 of John’s Gospel seem to emphasise this. So, in today’s reading: v29: the next day John saw Jesus coming; v35: the next day John watched Jesus walk by; then v43: the next day Jesus decided to go to Galilee; and Chapter 2v1: On the next day there was a wedding in Cana of Galilee!

It is almost as though John, the writer of the Gospel is feeling a great deal of intensity as he writes. “I must get this across,” he says to himself, “I must.” He seems desperate to make sure that his readers know Jesus’ credentials as fully and as quickly as he can relay them.

Indeed, after the opening of the gospel, it seems to markedly slow down, the intensity drops and the reader has more time to reflect on who Jesus is – through stories and accounts of Jesus’ conversations with people like Nicodemus and the Woman at the Well.

Next week, we return to Matthew’s gospel for a number of weeks and get chance to see how Jesus’ ministry progresses. It’s also an opportunity to see whether he actually lives up to the titles that have been revealed to us over the last few weeks.  So it is almost as though our Gospel reading is asking us to take stock of the names, and roles, that have been showered on Jesus.  We are invited to take all this information that we have been given about Jesus, make sure we understand what it means and then use this in the coming weeks to help us understand the unfolding story of the next three years of Jesus’ life.

In this blog, we can only scratch the surface of what John, the Gospel writer, hopes we will understand about Jesus.

Lamb of God.”  John the Baptist expected his listeners to recall pictures from the Old Testament; the lamb provided by God for Abraham to slaughter, the lamb of Isaiah 53, led to the slaughter for the sins of God’s people; the Passover Lamb from Exodus.  The word “lamb,” for John’s listeners connected strongly with words like “sin” or “atonement” – the way in which we can be reconciled with God despite our wrongdoing.

This Lamb is given by God – a gift from him. We can’t provide for our own atonement, instead God reaches out to us to draw us back to him.

The Lamb of God, who takes away the sin of the whole world.” says John the Baptist. Jesus will take away all sin, everyone’s sin. There is nothing exclusive or limited. Nothing narrow. No sin too heinous, no wickedness too terrible! Listen to the words of Isaac Watts’ hymn:

Not all the blood of beasts, on Jewish altars slain, Could give the guilty conscience peace. Or wash away its stain.

But Christ the heavenly Lamb, Takes all our sin away; A sacrifice of nobler name, And richer blood than they

Believing, we rejoice, To see the curse remove; We bless the Lamb with cheerful voice, And sing his wondrous love.

Baptiser with the Spirit.”   John the Baptist baptised people into a readiness for the coming of the Messiah. In the early church, baptism initiated people into the family of God.  Jesus, however, welcomes us into God’s kingdom by giving the Holy Spirit.  Jesus gives us the same gift as he received at his baptism – God’s spirit to guide us and lead us.

Son of God.” Jesus’ relationship with God was made explicit at his Baptism. He is loved by God – he is “the beloved.”   At Jesus baptism we are shown something of the closeness and intimacy between God and Jesus. It is only the one loved by God. The one who was with God, who was God. Only that one can secure our salvation – no other.

Messiah.” At the beginning of the first century, there was intense speculation about the Messiah, the “anointed one.”  In the Old Testament, anointing was used to describe the way in which people were appointed for special tasks, and given God’s spirit to enable them to carry out this task.   People were waiting for a Messiah – a kingly figure embodying God’s rule.  Andrew calls Jesus, Messiah. He recognises Jesus as the long awaited king who would fulfil the Old Testament prophecies and bring about God’s reign on earth.

Lamb of God, Baptiser with the Spirit, Son of God, Messiah – John, the Gospel writer’s names for Jesus. John wants us to carry these names with us as we read his Gospel. It is as though he says to us, “You will only understand my message fully if you realise that this is what I want to show you. Here is the one who by his life and death fulfils these roles and in doing so brings hope.” As we read the Gospels let’s use these names to inform our reading and to help us understand for ourselves just who Jesus is: Lamb of God, Baptiser with the Spirit, Son of God, Messiah.

Shame in Hebrews

David DeSilva says that Christians who received this letter were “longing for honor and a place in the society’s ladder of status. While believers were once content to lose their place in society (with the confiscation of their property, their subjection to trial and disgrace, Heb. 10:32-34), with the passing of time these longings resurface and pressure some of the believers at least to withdraw from the associations that marginalise them and hinder their efforts to regain honor in society’s eyes. … This accounts for the withdrawal of some of the gathered worshipping community (Heb. 10:25) as well as the perceived need on the part of the author to reinforce the importance of showing solidarity with the imprisoned and tortured (Heb. 10:34; 13:3). The author solves this problem by holding up before the congregation an alternative system of honor – one familiar to them, but with regard to which they require reinforcement – which carries with it the promise of greater and lasting reward for those honoured according to its standards.”[1]

The only way to maintain peace of mind was to despise the opinions of those outside the Christian community.[2]  “Against the background of both the Jewish martyrological literature and the Stoic/Cynic treatment of honor and dishonour, the meaning of Heb. 12:2 becomes quite clear. Jesus was not merely ‘disdaining the shame,’ roughly equivalent to braving or being unafraid of enduring the shame, nor stoically disregarding suffering and death.[3] Rather, he was providing a paradigm for the Christian minority group of counting as nothing the negative evaluation of the outside world, thinking only of the evaluation of God (‘the joy that was set before him’). Jesus despised (i.e., considered valueless) the disgraceful reputation a cross would bring him in the eyes of the Greco-Roman world. His own vindication came afterward, when he ‘sat at the right hand of the throne of God’ (Heb. 12:2). While in the public court of opinion, Jesus took the most disgraceful seat – on a cross – in God’s court of reputation, Jesus was worthy of the highest honor.” [4]

DeSilva points to early Greek Fathers, “much closer in time and culture to the author of Hebrews, understood Heb. 12:2 in much the same way. Jesus, as ‘Lord of Glory’, despised the negative evaluation of human beings.[5] …  Jesus’ own attitude toward the negative evaluation of the outside world was a pattern for believers who wished to follow him and share in his honor and victory.[6][7]

The author of the epistle sets forward a number of examples of those who have despised shame, particularly:

  • “Abraham, Isaac, and Jacob in Heb. 11:8-22. … Abraham left his homeland and embraced the status of ‘foreigner’ and ‘sojourner’ while awaiting the promise, but in so doing, he, like Christ, despises shame. In the Greco-Roman world, the sojourner or foreigner held a lower status than the citizen. … Indeed sojourning could be considered a reproach,[8] and the very terms ‘foreigner’ and ‘immigrant’ could be used as terms of abuse[9].” [10]
  • Moses, in Heb. 11:24, who “occupies a position of very high social standing. His honor rating by birth is very high, as well as by wealth, … (11:26). Faith expresses itself, however, not in achieving honor in society’s eyes, … but in achieving honor in God’s eyes. Before God’s court of reputation, the ‘reproach of Christ’ is of greater value than the ‘wealth of Egypt’, and the person of faith will evaluate the promise of society correctly in the light of God’s reward. Moses’ correct evaluation (Heb. 11:26) results also in a choice for ill-treatment now in the company of God’s people rather than temporary enjoyment of safety and security in the unbelieving society (Heb. 11:25; cf. 4 Macc. 15:8).”[11]
  • Other lower status examples in Heb.11:35b-38.

“Even if society ascribes disgrace to the believers, they are to despise a disgraceful reputation for the sake of gaining the honor and citizenship that God ascribes.”[12]


[1] David A DeSilva; “ Despising Shame: A Cultural-Anthropological Investigation of the Epistle to the Hebrews;” Journal of Biblical Literature, Volume 113, No. 3, Autumn 1994, p440.

[2] cf., Dio Chrysostom; Orat. 66.17-18, 24.

[3] These are the views of William Lane (Hebrews [WBC 47B; Word Books, Dallas, 1991], p414) and Harold W. Attridge (The Epistle to the Hebrews [Hermeneia, Fortress, Philadelphia, 1989], p358) respectively.

[4] DeSilva; op. cit., p445-446.

[5] Gregory of Nyssa, Contra Eunom. 3.3.68.9; Origen, Frag. In Ps. 37.12.4-5

[6] Origen, Exhor. ad Mart. 37.11-14; … John Chrysostom, In Epist. at Heb. 63.13-17, on Heb. 12:2; Macarius, Serm. 10.1.8.8-10.

[7] DeSilva; op. cit., p447-448.

[8] Lucian, Patr. 8

[9] Plutarch, De Exil. 607 A

[10] DeSilva; op. cit., p448-449.

[11] Ibid., p449.

[12] Ibid., p450 and see Malina and Neyrey; ‘Honor and Shame’, p27; Neyrey; ‘John 18-19’, p7-8; Malina and Neyrey; ‘Conflict in Luke-Acts: Labelling and Deviance Theory’, in The ‘Social World of Luke-Acts: Models for Interpretation’; ed. J.H. Neyrey; Hendrickson, Peabody, MA, 1991, p101.

Shame in a Range of Paul’s Epistles

1 Corinthians 1 -4, 11 and 14, 2 Corinthians 11 and 12, Galatians 1 and 2, Philippians 3, and Colossians 2, 1 Thessalonians

Paul declares in 1 Corinthians 1:27 that God chooses the foolish things of this world in order to shame the wise. He takes the weak things of this world in order to shame the strong. Jesus’ birth, life, death and resurrection change the whole dynamic of authority, power and honour: those who are first (the place of honor) will be last (the place of shame), and those who are last will be made first (cf. Matt. 20:16). This turning upside-down of accepted norms continues at the cross. “At the very hour of Jesus’ public shame on the cross, he was actually in the process of shaming his enemies, disarming the powers and authorities and making “a public spectacle of them, triumphing over them by the cross” (Col. 2:15). With these new eschatological realities breaking in on the present order, the only remaining “glory” (doxa) of the world, Paul declares, “is in their shame [aisxunh]” (Phil. 3:19).”[1]

Joeph Plevnik says that Paul set aside the kinship basis for honour in favour of a new standard (Phil. 3:7-8, 10-11). “Status in Israelite and local Tarsus society is no longer the apostle’s supreme value; now it is status in the Christian group: Christ is now his supreme worth. Instead of boasting of his own power and courage, the apostle now accepts weakness, lowliness, suffering, and fear (1 Cor. 2:1-5) for the sake of the gospel. Instead of seeking recognition in the eyes of others, he wants to be found in Christ, his Lord and his judge (1 Cor. 4:1-5; 2:1-5). He does not seek human approval (1 Thess. 2:4) but only God’s approval (cf. Gal 1:10). He insists on his status and role as a legitimate apostle (Gal. 1 and 2)”[2] (p99).

So, Paul was often in conflict with other apostles who “insisted that Greeks and Romans had to first be ‘in Israel’ before they could be accepted ‘in Christ’ (2 Cor. 11:5-6; 12:10). In Paul’s view, those ‘in Christ’ need to reassess what they once considered honourable in favour of a new set of standards. For example, when the Corinthians began to boast about their spiritual accomplishments, he reminded them that God called them when they were lowly, weak, and foolish in order to shame the strong, the wise, and the noble.”[3]

Wener Mischke also highlights 2 Corinthians 12:20-24 and asks us to “notice the emphasis on giving greater honor to those who seem honorless, because in Christ, all are ascribed honor by virtue of their being in Christ, members of God’s family, unashamed before / holy Almighty God. In this way it appears that community trumps individuality in the body of Christ—and that God wants our desire for individual honor to be in balance with—if not in submission to—the unity, honor and strength of the community.”[4]

In 1 Corinthians 11, Paul “is at pains to make sure that this fledgling Corinthian community observes proper first-century social conventions in order to maintain their public honour.”[5]

In 1 Corinthians 14, “Paul’s overriding concern [is]about potential shame for the community. Paul claims that women’s speech in worship is shameful. We should … remember that a man’s honour was impacted by his wife’s public comportment … Once again, the issue is public order so that the community (an ultimately Paul) will not be shamed by negative publicity.”[6]


[1] Timothy C. Tennent: “Theology in the Context of World Christianity: How the Global Church is Influencing the Way We Think About and Discuss Theology;” Zondervan, Grand Rapids, Michigan, 2007: p88. He also notes that Jude 1:13 describes the rebellious world as ‘wild waves of the sea foaming up their shame’.

[2] Joseph Plevnik; “Honor/Shame;” in John J Pilch and Bruce J. Malina eds; “Biblical Social Values and Their Meaning – A Handbook”; Hendrickson, Peabody, Massachusetts, 1993.

[3] Ibid., p99-100.

[4] Werner Mischke; “Honor and Shame in Cross-Cultural Relationships;” Mission ONE, May 2010. Web. 21st November 2103. Available from http://beautyofpartnership.org/about/free at http://cdn.assets.sites.launchrocketship.com/a6347111-876c-4337-9f3f-9f712c3494ed/files/34d84729-e146-4502-aa4e-34f0abce8a51/honor-and-shame-in-relationships-3sm.pdf: p20-21.

[5] Carolyn Osiek and Jennifer Pouya, “Constructions of Gender in the Roman Imperial World” in Dietmar Neufeld, Richard E. Demaris eds. ‘Understanding the Social World of the New Testament’, Routledge, Abingdon, 2010, p50.

[6] Ibid., p50.

Shame in Romans

In the last post we heard from Robert Jewitt who is a scholar who has focussed much of his studies on the Epistle to the Romans. Another New Testament scholar, Halvor Moxnes, has argued that the entire argument of this, Paul’s most influential letter, is in the ancient context of an ‘honour society’ in which ‘recognition and approval from others’ is central, which means that the group is more important than the individual. Moxnes says that this “contrasts with the dominant concern of Western theology and its interpretation of Romans, in which guilt and guilt-feeling predominate as a response to wrongdoing. He notes that the semantic equivalents of honour and shame play important roles in the argument of Romans; these include: honour, dishonour, and the verb to dishonour; shameless, be ashamed, and put to shame; glory and to glorify; praise and to praise; boast, boasting and to boast.”[1]


[1] Robert Jewett; “Saint Paul Returns to the Movies: Triumph Over Shame;” Eerdmans, Grand Rapids, Michigan, 1999; p18, quoting Halvor Moxnes, ”Honour and Righteousness in Romans;” Journal for the Study of the New Testament 32 (1988); p61-77.